Summer Marketing Bundle is here.

2D Floor Plans

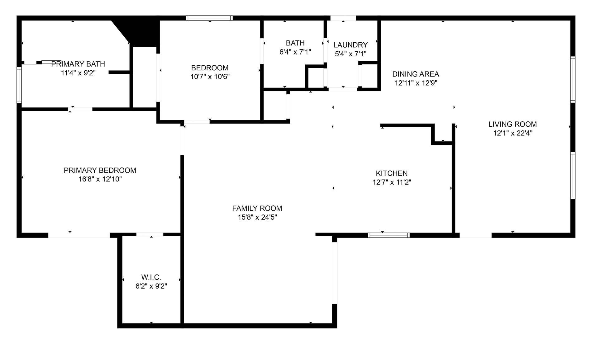
The Importance of 2D Floor Plans in Real Estate Listings for Homebuyers

In the dynamic world of real estate, presenting properties effectively is key to attracting potential homebuyers. One of the most influential tools in listings today is the 2D floor plan. This simple yet comprehensive representation helps bridge the gap between imagination and reality for prospective buyers.

all_floors_129_monte_carlo_street_rancho_mirage_with_dim.JPG

Why 2D Floor Plans Matter:

Clear Visualization: Homebuyers can easily understand the layout, flow, and spatial arrangement of a property.

Efficient Decision-Making: Comparing different listings becomes more straightforward when floor plans are available.
Highlighting Key Features: Sellers can emphasize unique aspects like open-concept living areas, large master suites, or functional kitchen designs.
Realtor.JPG

Benefits for Real Estate Agents:

Enhanced listing appeal leading to increased inquiries.
Reduced time explaining property layouts during showings.
Professional image that boosts credibility.

Incorporating detailed 2D floor plans in real estate listings not only attracts more homebuyers but also streamlines the decision-making process, benefiting both buyers and sellers alike.
all_floors_8_mcgill_drive_rancho_mirage_with_dim.JPG
all_floors_129_monte_carlo_street_rancho_mirage_with_dim.JPG

BASIC FLOOR PLAN

all_floors_219_international_boulevard_129_monte_carlo_st__rancho_mirage_rancho_mirage_without_dim_1.JPG

Professional Real Estate Photographer for the Coachella Valley Communities

Jay Hooker Palm Springs
Real Estate Photographer

Jay@jayhookerphotography.com760-202-8301

Connect